
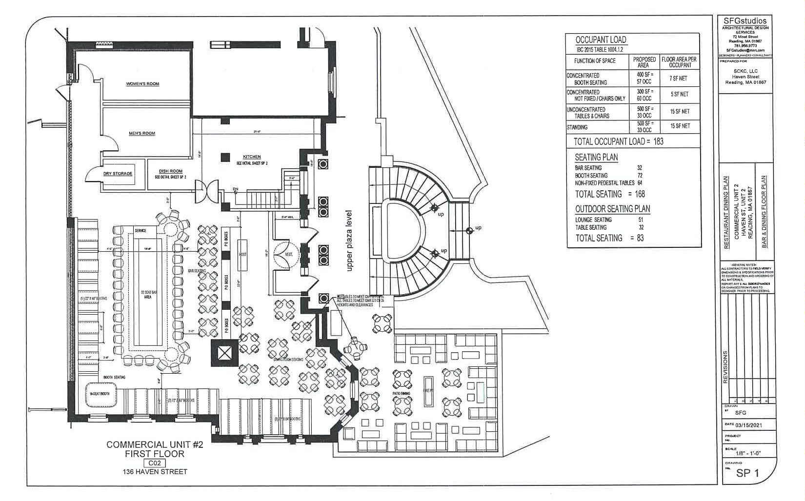
Reading, MA — The Select Board voted 5-0 to approve an on-premises all-alcohol pouring license for the Common District Meeting House on May 4. This is an initial step in preparation for opening a new restaurant at 136 Haven Street, the former Post Office building. Attorney Josh Latham, speaking for the applicant, referred to the application as one that “represents optimism and growth” both for downtown Reading and for emergence from the COVID-19 pandemic. The proprietors have signed a fifteen-year lease for the 3,900 square foot space, including an outdoor dining patio.

“This is not a fly-by-night venture,” Latham added, citing that the same management group owns and operates a restaurant in Stoneham. Latham continued that the owners plan to hire up to 40 staff, many locally, and intend to become a part of the community. “Local is a core part of the business,” Latham proclaimed. The interior will have 68 seats with tables, booths, and bar seating and will require a seven-month build-out. “[The owners] plan to be a long-term partner with Reading,” Latham concluded.
Select Board member Christopher Haley asked about parking concerns. Principal partner Paul Solimine responded that most of the business for the new restaurant would be in the evenings when “Haven Street is empty.” He also indicated that the new site is close to the municipal parking lot on Haven Street.
After the vote, Select Board chair Karen Herrick welcomed the group to Reading, “I’m excited about this project . . . it will be a great addition to the community.”
Town Clerk Laura Gemme reviewed public records request policies with the board. Gemme noted the policies and guidelines were posted on the website and approved by the Secretary of State Records Division in 2017. She also reported that Reading publishes more information on its website than most of its neighbors. “We go above and beyond the requirements of the state,” Gemme commented.

Gemme did propose to the board that she make a series of videos for the public, explaining and training how to find information using the Weblink records keeping system. The board generally approved of the idea.
Gemme also indicated that though the charter requires boards to submit minutes to the clerk’s office, it is not required by Massachusetts General Law and that a few have not submitted minutes in quite some time. Once the clerk’s office has received minutes, they usually are posted within one to two days. Gemme stated that complaints often come as a result of minutes that have not been provided to the office. She also shared that she spends three days a week doing nothing but processing records requests. “Ninety-nine percent of records requests are provided with ten days,” Gemme confirmed.
Posting of procurements was also discussed with Procurement Officer Allison Jenkins. Jenkins indicated that procurement requests for proposals are posted to the website and other news outlets for the public to refer to, but their role “is not to get feedback from residents on what to get and how to go about it.” She referred to some recent complaints about information regarding contracts stating that the information asked for was supplied. Still, some residents assumed that there was more information that they were not getting. Some of the requested information simply did not exist. “Some of these contracts go back to the 1990s and early 2000’s” Jenkins explained. “[The contracts from 2000] were current and renewed.”
When asked what it would take to update all records on the website, Gemme offered that an archivist would need to be hired, or possibly a person in the clerk’s office dedicated to records requests.
Select Board member Anne Landry indicated that expansion of the information on the website should be a policy decision made by the board. Member Mark Dockser also suggested next steps may include some cost/benefit analysis that might be needed to determine if posting more information on the website is worth the expense of getting it there. The board will revisit the issue at a later date.
The Select Board voted 5-0 to approve the change of officers and manager for the Meadowbrook Golf Club. It reviewed plans for a downtown parking ad hoc committee and discussed liaison assignments.
The Select Board adjourned at 10:15 pm to executive session for the purpose of approving several collective bargaining agreements.
